3-комнатная квартира в ЖК «Домашний»

Параметры:
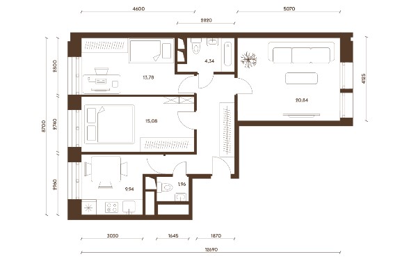
Площадь:
76.5 м2
Этаж:
3
Получите бесплатную консультацию по телефону
+7 (495) 137-42-59
Описание:
Ключи в 2018!
3-комнатная квартира в ЖК «Домашний»