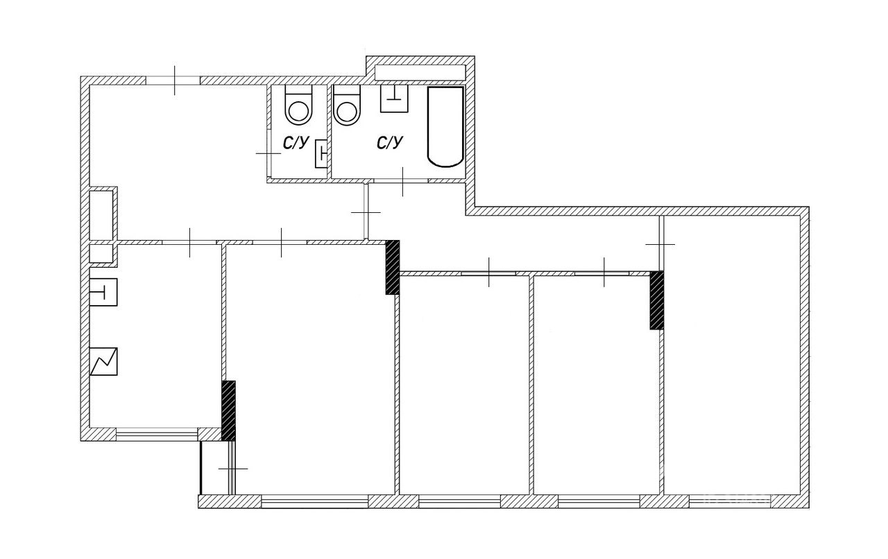
4-комнатная квартира в ЖК «Мой Адрес на Рокоссовского»

Параметры:
Площадь:
126.5 м2
Этаж:
1
Получите бесплатную консультацию по телефону
+7 (495) 137-42-59
Описание:
Жилой комплекс построен на северо-востоке Москвы, всего в двух километрах от масштабного национального парка "Лосиный Остров". Благодаря такому удачному соседству район отличается отличной экологией и чистым воздухом. Совсем недалеко также находится благоустроенный парк "Сокольники", где можно прекрасно провести время в любое время года. А для коротких прогулок и отдыха после работы подойдет живописный сквер на территории рядом с жилыми корпусами.
4-комнатная квартира в ЖК «Мой Адрес на Рокоссовского»